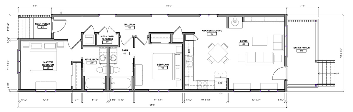
An urban infill residence sited on a previously vacant lot in Flagstaff's Sunnyside neighborhood.  Approximately 1,200 square feet, the project is a modern re-interpretation of the traditional "shotgun" house form including two bedrooms, two bathrooms, kitchen, & living areas.  Currently under construction, with expected completion in late 2021.  
Back to Top