New Construction - Single Family Residential
Client: Private Owner
Client: Private Owner
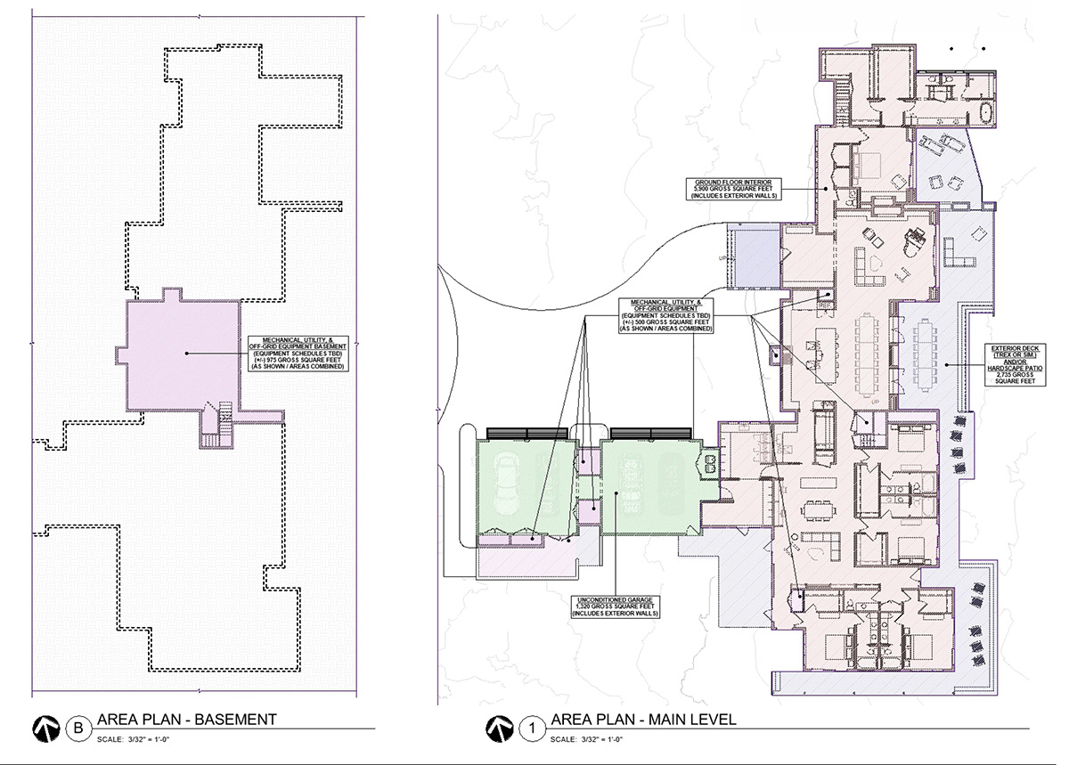
A fully off-grid private residence located just west of the San Francisco Peaks in unincorporated Coconino County, Arizona. The multi-generational custom residence, sited on a 10-acre parcel orients north-to-south, providing panoramic views of the adjacent Hart Prairie Preserve, Coconino National Forest, & the San Francisco peaks throughout the structure. Sustainable site features include seasonal solar shading at western exposures, on-site photo-voltaic electricity generation, and rainwater harvesting for non-potable water usage.