ABOUT
  • PROJECTS - IN PROGRESS
  • Anderson Road Residence
  • PROJECTS - BUILT
  • Glacier View Residence
  • Philomena Drive Residence
  • Aztec Street Remodel
  • Cheshire Remodel
  • Cooper-Young Kitchen
  • Crosstown Concourse
  • Parcels at Concourse
  • Baltic Birch Coffee Table
  • PROJECTS - UNBUILT + FEASIBILITY STUDIES
  • U-Heights Lot Masterplan
  • Grindelwald Master Suite
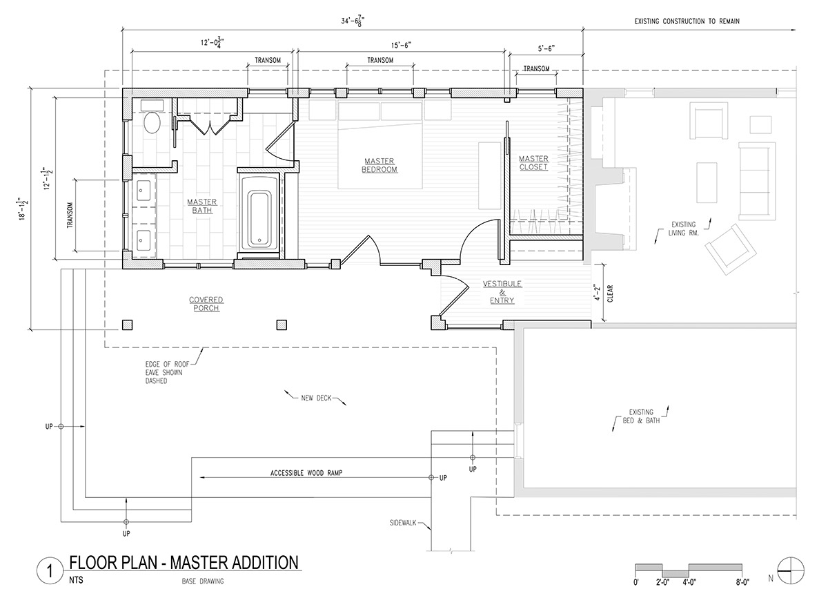
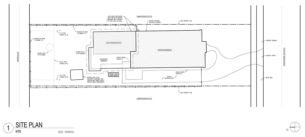
  • Young Avenue Addition
  • The In-Fab House
  • ARCHITECTURAL PHOTOGRAPHY
  • Lockett Ranches Residence
  • Toronto Mausoleum
  • Crosstown Concourse
  • Philadelphia Row House
CONTACT
StudioLP4
ABOUT
  • PROJECTS - IN PROGRESS
  • Anderson Road Residence
  • PROJECTS - BUILT
  • Glacier View Residence
  • Philomena Drive Residence
  • Aztec Street Remodel
  • Cheshire Remodel
  • Cooper-Young Kitchen
  • Crosstown Concourse
  • Parcels at Concourse
  • Baltic Birch Coffee Table
  • PROJECTS - UNBUILT + FEASIBILITY STUDIES
  • U-Heights Lot Masterplan
  • Grindelwald Master Suite
  • Young Avenue Addition
  • The In-Fab House
  • ARCHITECTURAL PHOTOGRAPHY
  • Lockett Ranches Residence
  • Toronto Mausoleum
  • Crosstown Concourse
  • Philadelphia Row House
CONTACT

Young Avenue Addition

Master suite addition for an existing single-family home in Midtown Memphis, TN, in collaboration with Facture Design.

Existing Conditions

↑Back to Top